Prov Review Committee Opposes Fane Tower Design -- 195 Commission to Make Final Decision
GoLocalProv News Team and Kate Nagle
Prov Review Committee Opposes Fane Tower Design -- 195 Commission to Make Final Decision

SLIDES: See Fane Organization’s Proposal and Renderings to DDRC Below
The Fane organization, however, pointed out that the recommendations are non-binding — and that the 195 Commission will have the final say in whether to green-light the project — or not.
GET THE LATEST BREAKING NEWS HERE -- SIGN UP FOR GOLOCAL FREE DAILY EBLAST“Rather than weigh in on the design of the project, the DDRC chose to focus primarily on the height of the project, which has already been supported by the I-195 Commission and, through a robust public process, approved by the Providence City Council," said Dante Bellini on behalf of the Fane Organization.
"Since the DDRC can only offer an advisory opinion and the I-195 Commission has the exclusive authority to grant design review, we intend to ask the I-195 Commission to approve the design."
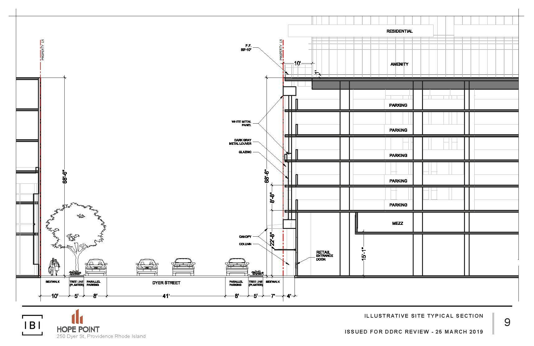
The DDRC recommended denying 3 of the 4 waiver requests by Fane — in addition to the design concept — as opponents to the project outnumbered proponents at the meeting on Monday night.
MORE BELOW VIDEO
The DDRC recommended denying waiver requests pertaining to building height “massing,” the transition lines from the project to adjacent properties, and the transparency of the ground level floors.
The DDRC did acknowledge that the Fane Tower proposed a set-back from the street greater than what is required — and did not object to that waiver request.
Monday’s meeting marked the latest in the Fane Tower battle, after the Providence City Council moved to override Providence Mayor Jorge Elorza’s veto of the variance to allow the $300 million project move forward in December.
Competing Viewpoints
Gianni Ria with the IBI Group, who walked the DRCC through the Fane design proposal, spoke to the changes made in the proposal to meed the DDRC's previous concerns.
"Compared to the previous [one], we listened to concerns of solid versus transparency," said Ria, of concerns raised about the six stories of parking before the housing portion of the tower would start. "We're trying to carry some of the top of the building all the way down to the floor...there's a great opportunity to introduce lighting at the lower level."
The DDRC staff, however, took the position that the project is in conflict with the city's comprehensive plan on a number of fronts.
"There is inherent conflict with what is allowed on the map — and the building clearly does not meet the design standard. It would not be impracticable for a building with a different design to meet this standard," said Chris Ise with the DDRC in his report, noting that project would likely have an "adverse impact" on the natural environment — and impact traffic.
