Proposal to Demolish Historic $5M Blackstone Blvd Estate Emerges to Build 10 New Houses
GoLocalProv Business Team
Proposal to Demolish Historic $5M Blackstone Blvd Estate Emerges to Build 10 New Houses

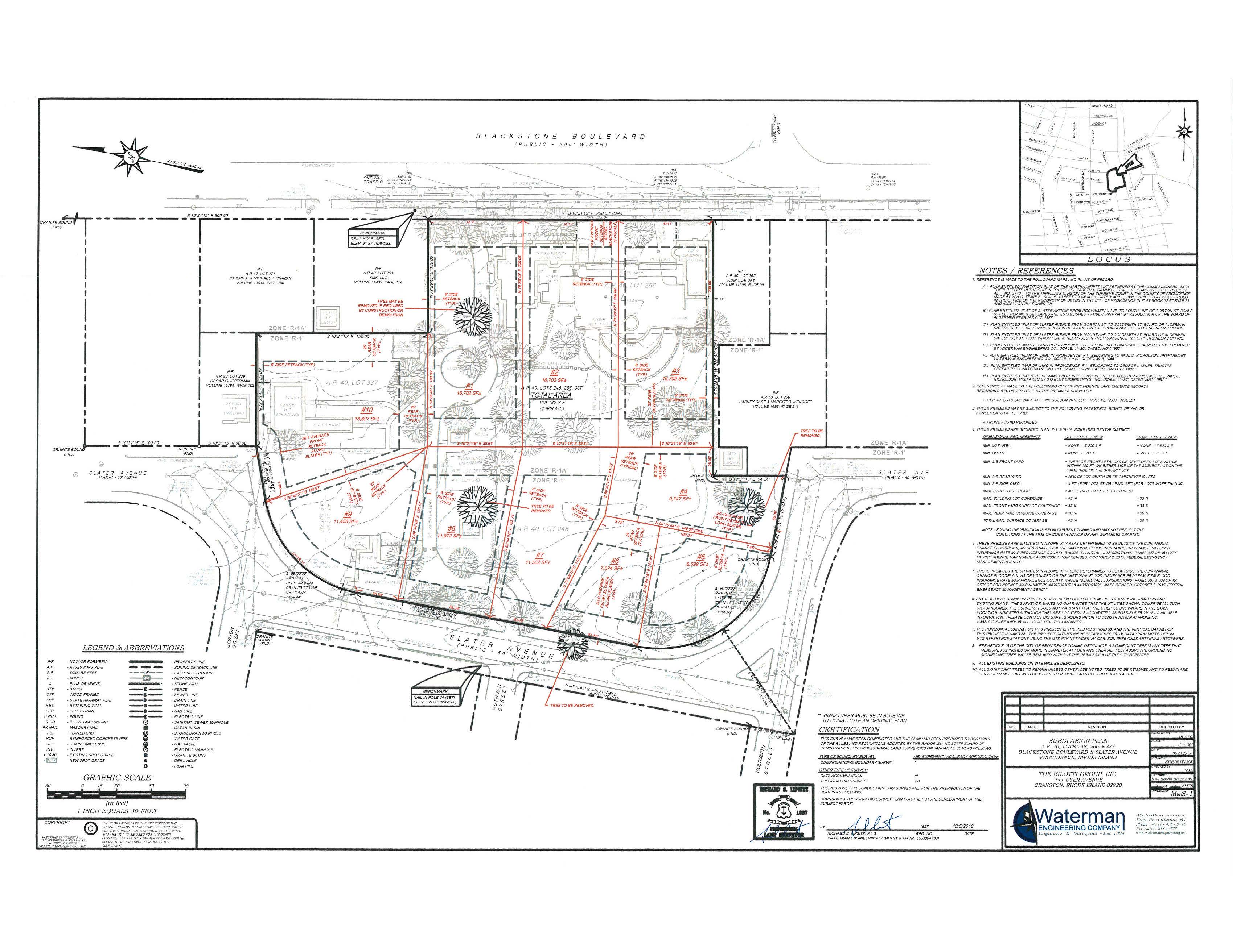
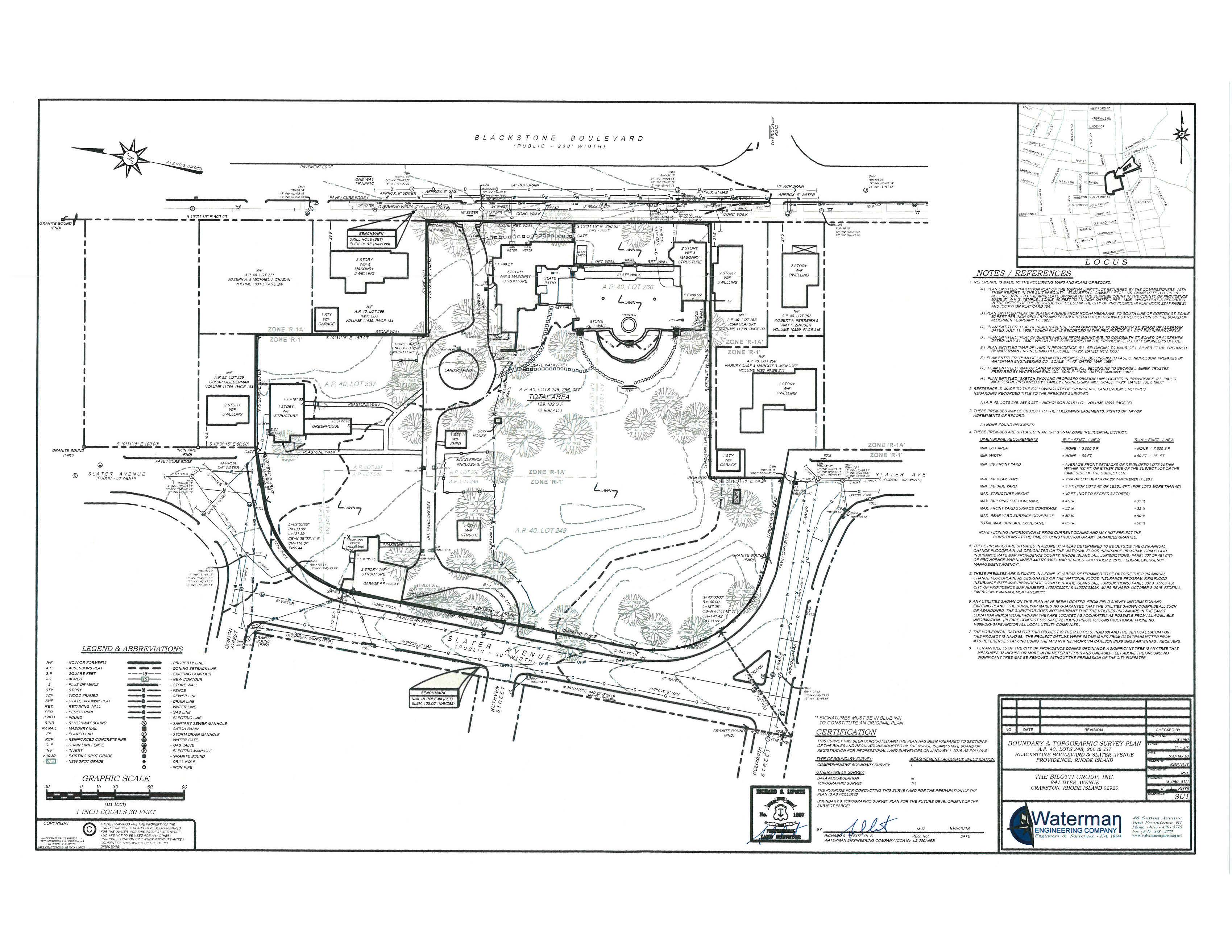
The Beresford-Nicholson House at 288 Blackstone Boulevard, listed on the U.S. Department of Interior’s National Register of Historic Places, is being targeted by The Bilotti Group. The plan, developed by the firm, is to tear down the historic 7,600 square foot, 14 room main house as well as two additional historic buildings and replace them with ten new homes.
SEE THE PLANS BELOW
GET THE LATEST BREAKING NEWS HERE -- SIGN UP FOR GOLOCAL FREE DAILY EBLASTUntil his death earlier this year, the estate was owned by business leader and philanthropist, Paul Nicholson, Jr.
Nicholson’s family lived in the house for much of the past 100 years. The late Nicholson was a member of one of Rhode Island’s wealthiest families and had an accomplished career at Yale, in the United State Navy, and as a business leader -- he served on the boards Nicholson File Company, Fleet National Bank, Fleet Financial Group, Providence Journal Company, Allendale Mutual Insurance Company, American Mutual Liability Insurance Company, American Screw Company, Rhode Island Electric Protective Company, Sayles Finishing Plants, according to his obituary.
In addition, he served as the president of the Boy Scotts for decades and served on the board of Providence Public Library, Butler Hospital, Roger Williams General Hospital to name but a few.
Upon his death, the house passed to family members who then created a Limited Liability Corporation and began marketing the property through Residential Properties. The property is being jointly marketed by Kris Gladding Chwalk and Jim DeRentis, the husband of Governor Gina Raimondo's chief of staff Brett Smiley.
The estate is listed at $4,950,000 and according to residential properties website — it is under contract. Presently, the house and two additional buildings are taxed at $92,694 annually.
The Bilotti group is primarily an apartment management firm. According to RI corporation documents, the firm is led by President Christopher Bilotti and Vice President Vincent Bilotti. Efforts to reach representatives of the firm were unsuccessful.
The proposal will be considered before the Providence City Planning Committee on November 13, 2018, at 4:45 p.m.
City Planning Commission Regular Meeting
444 Westminster St., 1st Floor., Conference. Room Joseph A. Doorley, Jr. Municipal Building Providence, RI 02903
READ THE SUBMISSION TO THE DEPARTMENT OF THE INTERIOR FOR FEDERAL DESIGNATION
BERESFORD-NICHOLSON HOUSE (1910-1912; altered 1919; south wing added 1925): Clarke, Howe & Homer, architects; Jackson, Robertson & Adams, architects for 1919 and 1925 alterations. A large, asymmetrical, 21⁄2 story single-family house in the style of a picturesque English country house, set on an extensively landscaped 49,750 sq. ft. lot that extends west to Slater Avenue and is almost entirely surrounded by an approximately 8-foot-tall stuccoed wall that significantly reduces the visibility of the house and its several outbuildings from surrounding streets. The house is set end to the street, facing north, and has a hipped slate roof (with several tile-clad dormers), stone foundation, stone and stucco walls, wood trim, and wood multi-light windows in varying configurations (casements and double hung sash). The house has several wings and projecting pavilions, including a stone-faced entrance pavilion on the north facade which is subdivided into end-gable and flat-roofed sections. The entrance pavilion contains a door with a flaring Regency-style hood and a segmental-arch tripartite window above, both under the gabled section, and a 2nd floor octagonal window in the flat-roofed section. This house was originally designed for William and Florence Beresford; he was a salesman with the Bodell & Co. banking and brokerage firm, before forming his own brokerage firm, Beresford & Co., about 1916. The second owners, Paul C. Nicholson (1888-1956) and his wife, Martha Sayles Nicholson (1896-1947), extensively altered and enlarged both the house and the overall property (they acquired a neighboring lot for the purposes of creating a formal garden in 1930, and relocated the existing single-family dwelling on it; see 280 Slater Avenue); their architect, F. Ellis Jackson, was a family friend. Paul C. Nicholson was vice president and treasurer of the Nicholson File Co., one of Providence’s largest and most important manufacturing industries. This property is reminiscent of the type of residential development found in the more remote reaches of Providence’s East Side in the 18th and 19th centuries: the “country estate” for the well-to-do. The Beresfords’ original land purchase measured about 3 acres; the Nicholsons later subdivided and sold off two smaller lots containing a carriage house with servants’ quarters and a caretaker’s cottage (see also 315 and 325 Slater Avenue), but several other outbuildings remain part of this property, which is still owned by the Nicholson family.
Playhouse (1930): 1 story, hipped wood shingle roof, stone and stucco walls, center entrance in the north façade (facing the back of the main house), wood multi-light casement windows, turret near the northeast corner, stone and wood arbor on the west side elevation. Stands south of the house in the southeast corner of the lot, attached to the perimeter wall; minimally visible from Blackstone Boulevard. Built for the use of the Nicholson children.
Garden Shed (by 1937): 1 story, hipped asphalt roof, wood shingle siding, horizontally- proportioned paired wood multi-light casement windows. Located behind and northwest of the main house, at the west end of the main driveway that enters the property from Blackstone Boulevard.
_Page_1.jpg)
_Page_2.jpg)
_Page_3.jpg)
This story was first published 11/2/18 2:30 AM
